Cablage pompe à essence sur 3.2 de 1986

Message :
le 14/07/2024 à 14:02
Bonjour a tous,
Quelqu'un connaîtrait il le cablage de ma pompe à essence.
Elle ne fonctionne pas, voilà ce que j'ai déjà fait :
- j'ai changé la pompe
- remplacé le relai dme
- le fusible est ok
- le cable relié au fusible part, sous le tableau de bord, et passe sous le levier de vitesse pour aller où ???
Quelqu'un aurait-il une piste?
Merci à tous
le 14/07/2024 à 14:49
Salut
Tu as le 12volts dessus ?
le 14/07/2024 à 15:12
Non pas de 12v
le 14/07/2024 à 16:29
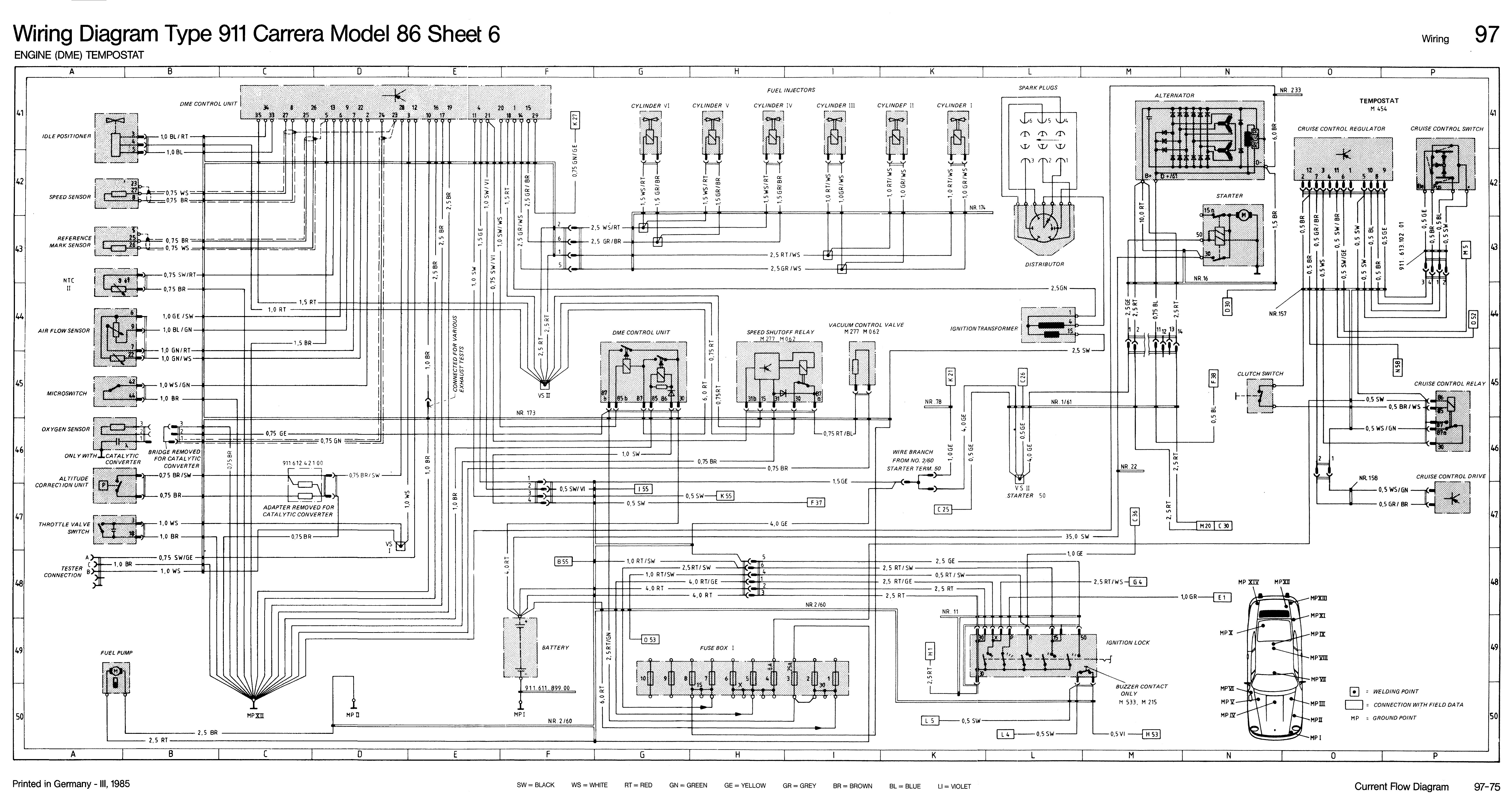
C'est un rouge 2,5 mm2 qui rejoint le faisceau numéroté NR 2/60. Faisceau qui comprend pas mal d'autres conducteurs, dont la masse (marron) de la pompe, qui va au point de masse 2 (MP II). C'est ce qu'indique le schéma. Tu as ce schéma ? Sinon le voici :
le 14/07/2024 à 16:40
Merci pour le schéma.
Je vais devoir étudier ceci...
le 14/07/2024 à 16:46
Tu peux cliquer dessus et l'afficher en très grand sur PC. Il est bien lisible.
le 14/07/2024 à 18:31
Super lisible.
Merci.
Je pense que le cablage n'est pas d'origine.
Pour info, j'ai du 12v sur le fusible quand je lance le demareur mais rien à la pompe.
le 14/07/2024 à 18:45
Oui tu m'as dit ça hier. Donc y a pas à tortiller, c'est le fil rouge qui est interrompu quelque part entre le porte-fusible et la pompe. Sur le schéma c'est un fil continu qui ne passe même pas par un connecteur. Tu vois bien un rouge 2,5 partir du fusible et arriver à la pompe ? Je veux dire, c'est bien le même fil que tu vois où il change de couleur ou de section entre une extrémité et une autre ? (Ce qui ne serait pas normal d'après le schéma.)
le 14/07/2024 à 19:18
Les borniers de la boîte à fusible et du fusible font bien contact? J’ai eu le cas avec le circuits des phares. J.avais du 12v d’un côté du fusible mais pas de l’autre. Étonnement, j’ai été obligé de passer les borniers et les bornes des fusibles avec du papier de verre grain 240 pour que les contacts soient plus franc. On ne sait jamais 😅
le 14/07/2024 à 20:38
Demain je m'occupe de ça
Je vais suivre le câble de la pompe qui arrive sous le tube de remplissage kdu réservoir et ensuite opération spaghetti dans tous ces câbles qui vont aux fusibles :(.
Je vais aussi devoir démonter cette " boîte à fusible" sans oublier de débrancher la batterie.
En tous cas merci pour vos super conseils
le 15/07/2024 à 20:59
Et bien voilà.
Totine s'est mis à ronronner aujourd'hui.
Donc effectivement le cablage n'était pas d'origine. Il y a un coupe circuit sur le cablage de la pompe.
En résumé : pompe a essence + relais dme HS
Merci à tous pour vos conseils
le 16/07/2024 à 17:44
J'avoue ne pas comprendre. Tu dis avoir découvert un coupe-circuit. Et après tu dis que la pompe et le relais DME étaient HS.
Quel était le coupable alors ? Le coupe-circuit ou la pompe et le relais ?
le 18/07/2024 à 16:03
Court circuit, j'imagine!
le 18/07/2024 à 18:45
La pompe et le relais.
Par contre je galère pour remettre la plaque sous la voiture.
En enlèvent les vis et ecrou ce soir tout c'est décalé, plus moyen de remettre la vis et l'écrou...
Comment faire???
Pour info la voiture est déjà sur chandelles
Message édité le 18/07/2024
le 18/07/2024 à 19:54
Avec un petit cric bouteille placé sous la barre stab afin de l'aider à monter pendant que tu positionnes.
le 18/07/2024 à 20:00
Ok je vais essayer demain
Merci
le 19/07/2024 à 12:48
Dixit PhicouCourt circuit, j'imagine!
Peut-être. On saura jamais.
le 19/07/2024 à 13:47
Dixit PhicouCourt circuit, j'imagine!
voir un coupe circuit en court circuit !
le 19/07/2024 à 16:28
Super ça a fonctionné.
Grand merci à tous

Revenir à la liste des sujets

Sujet archivé.